RD Vyskeř

Návrh domu v obci Vyskeř uprostřed Českého ráje. Průběh výstavby Letní kuchyně

Zemědělská usedlost Troskovice

Dokončený objekt Průběh realizace Novostavba rekreačního objektu. Návrh projektu v roce 2010. Fotografie rozestavěnosti z roku 2016. Finalizace v roce 2017.

Rekonstrukce domu Lhota

Návrh rekonstrukce domu Lhota

Rekonstrukce domu Tříč

Návrh rekonstrukce domu v Tříči.

RD Dlouhý Most

Vizualizace Návrh studie novostavby.

Rekonstrukce venkovského objektu

Návrh rekonstrukce venkovského objektu ve Škodějově

Fasáda a zahrada školy Příšovice

Návrh fasády školy společně se školní zahradou.

Rekonstrukce bytového domu

Rekonstrukce bytového domu v Rovensku pod Troskami – provozní studie  

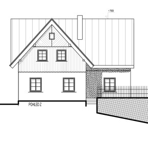
RD Višňová

Výkresová dokumentace

RD Jesenný

Hotová realize Průběh výstavby objektu Návrh rodinného domu v obci Jesenný.    

RD Bítouchov u Semil

Průběh realizace RD   Novostavba rodinného domu – Bítouchov u Semil.